Калуга, Строящийся жилой дом
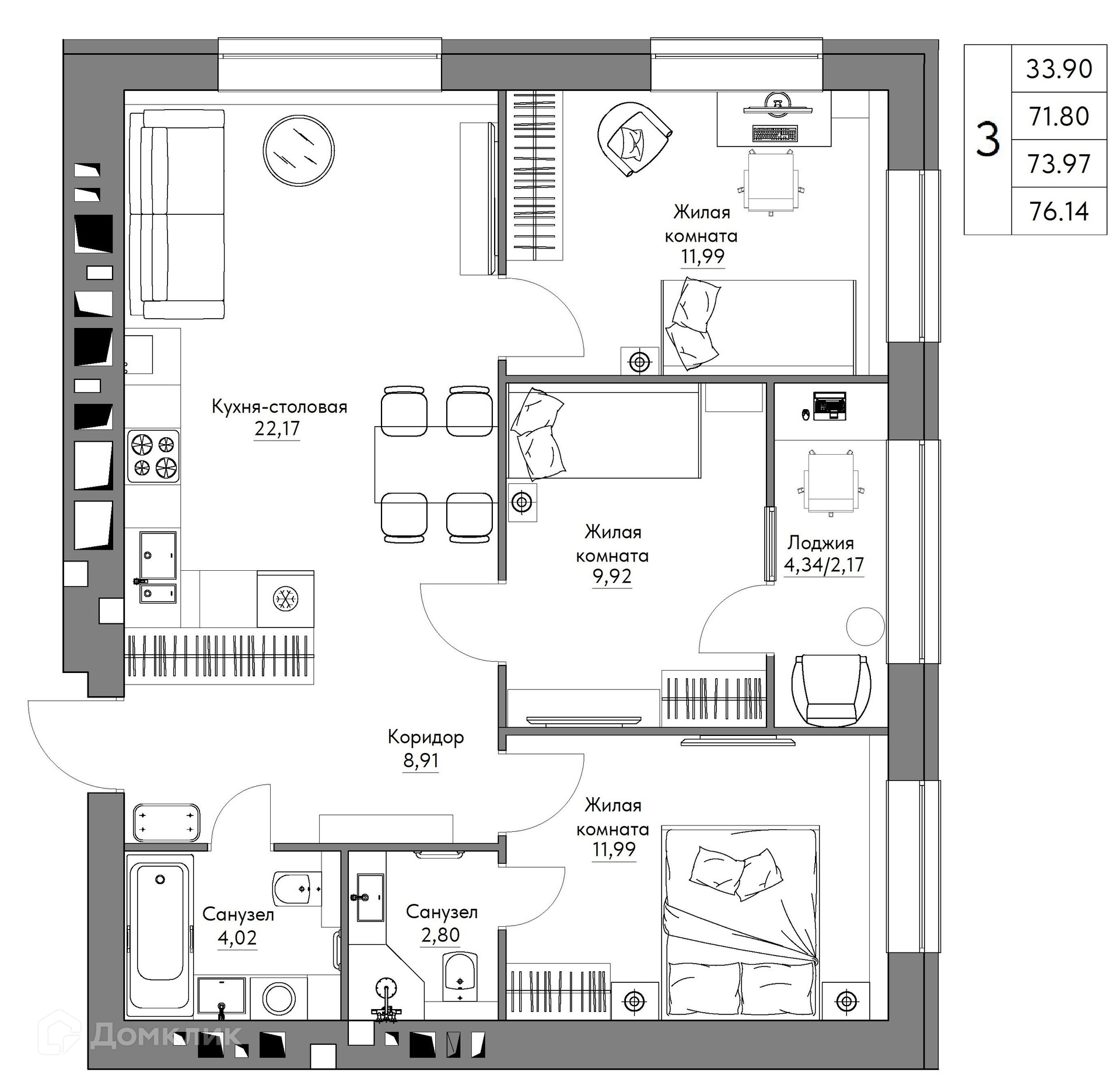
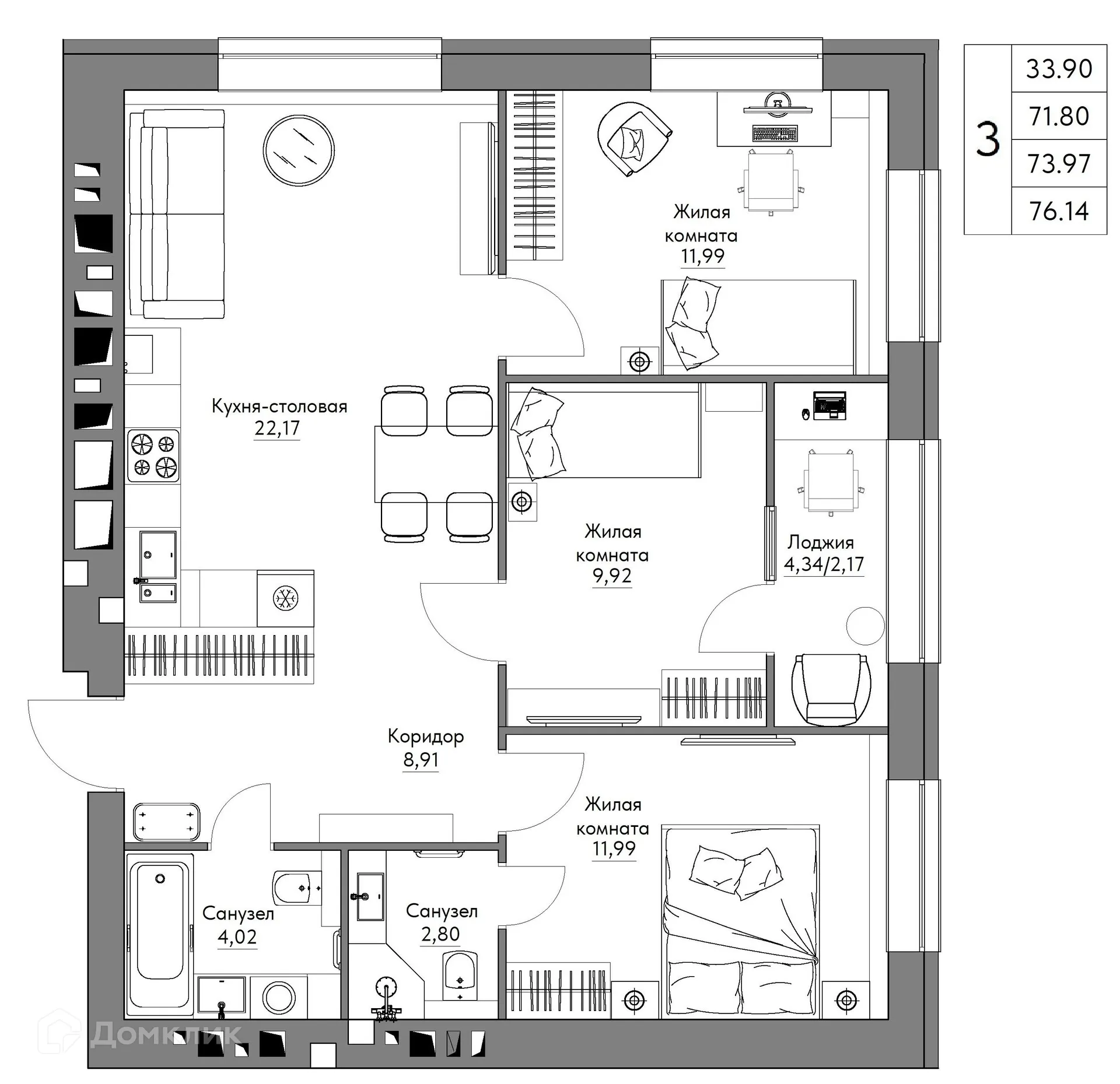
Площадь
Жилая
Кухня
Отделка
Класс жилья
Комнат
Номер кв.
Этаж
Предлагается 3-комнатная квартира в новом жилом комплексе "ЖК Жилые кварталы ОСТРОВА" 🏢. Квартира расположена на 5-м этаже 10-этажного дома. Отличный вариант для инвестиций.
Чтобы узнать подробности и проверить актуальную стоимость — позвоните нам прямо сейчас! 📞
«ОСТРОВА» - экосистема жилых кварталов, расположенных вдоль пешеходного бульвара. Каждый квартал–«остров» состоит из нескольких домов средней этажности, объединенных единым закрытым двором. Концепция 15-ти минутного города включает детский сад, магазины, кафе, аптеки, салоны красоты, стадион, баскетбольный центр и бульвар – променад. В рамках второй очереди будут построены четыре блок-секции высотой от 6 до 9 этажей на 272 квартиры общей площадью почти 14 тыс. кв. м. Увеличена вариативность планировочных решений - запроектированы лоты комфорт-класса 1,2,3,4 комнатных планировок, в том числе квартиры с террасами на втором этаже. На первом этаже абсолютно все квартиры оборудованы собственными террасами. В квартирах второй очереди будут выполнены \* 2 варианта отделки - предчистовая / черновая \* панорамное остекление утепленных лоджий \* высокие потолки (до 3,15 м) Как и в первой очереди, здесь будут сквозные подъезды с просторными входными группами, современным дизайном и безбарьерной средой. В холле - стильная зона ожидания, колясочная, санузел и помещение с лапомойкой для домашних питомцев Каждый дом оснащен смарт-системой управления домофоном, бесшумными лифтами, видеонаблюдением и умными шлагбаумами с распознаванием номеров.
Срок сдачи: 3 кв. 2024 г.
Срок сдачи: 3 кв. 2024 г.
Площади квартир
Этажность
Класс жилья
Корпусов
Стены