Калуга, 3-й Академический проезд, 10 стр
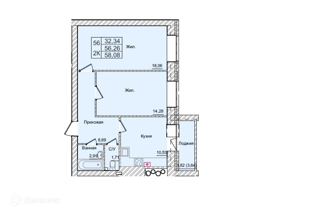
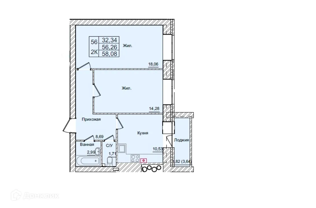
Площадь
Жилая
Кухня
Отделка
Класс жилья
Комнат
Номер кв.
Этаж
В продаже 2-комнатная квартира в востребованном жилом комплексе "ЖК АКАДЕМИЧЕСКИЙ" 🏢. Квартира расположена на 1-м этаже 10-этажного дома. Отличный вариант для инвестиций.
Для бесплатного бронирования и проверить актуальную стоимость — позвоните нам прямо сейчас! 📞
Девятиэтажный кирпичный четырех подъездный дом с поквартирным индивидуальным отоплением завершит комплекс из трех домов. Дом рассчитан на 216 квартир. Всего по проекту: 73 однокомнатных квартиры от 37 до 49 м2, 125 двухкомнатных квартир от 55 до 74 м2, 18 трехкомнатных квартиры от 72 до 79 м2. При разнообразии планировочных решений проектировщики учли эргономику, что поможет обустроить неиспользуемые метры. Благоустроенная придомовая территория с детской площадкой и парковочным пространством . Квартиры реализуются в соответствии с 214-ФЗ с регистрацией договоров участия в долевом строительстве. Условием привлечения денежных средств участников долевого строительства является размещение денежных средств на счетах эскроу (заключено соглашение с ПАО Сбербанк). Срок сдачи 4 квартал 2025 года.
Срок сдачи: 4 кв. 2019 г.
Срок сдачи: 4 кв. 2019 г.
Площади квартир
Тип жилья
Этажность
Класс жилья
Корпусов
Стены